※ 2026年3月28日オープン ※
コネクティアを体感できる展示場

愛知県岡崎市に展示場が完成しました。写真では伝わらない質感や性能についてリアルに体感いただけます。

ユニットハウスとは思えない広々空間

展示商品はラインナップの中でも最もコンパクトなサイズですが、 実際に中に入ると「これがユニットハウス!?」と思うほどゆったりとした空間が広がっています

キッチン・トイレ・お風呂を完備

生活に欠かせないキッチン・トイレ・お風呂が全て備わっているので、よりリアルな暮らしをイメージしていただけます。  

贅沢すぎるウッドデッキ

玄関脇には建物よりも広いウッドデッキ。このように建物だけでなく、外構の施工もお任せいただけます。

ユニットハウスとは思えな広々空間

展示商品はラインナップの中でも最もコンパクトなサイズですが、 実際に中に入ると「これがユニットハウス!?」と思うほどゆったりとした空間が広がっています

キッチン・トイレ・お風呂を完備

生活に欠かせないキッチン・トイレ・お風呂が全て備わっているので、よりリアルな暮らしをイメージしていただけます。  

贅沢すぎるウッドデッキ

玄関脇には建物よりも広いウッドデッキ。このように建物だけでなく、外構の施工もお任せいただけます。

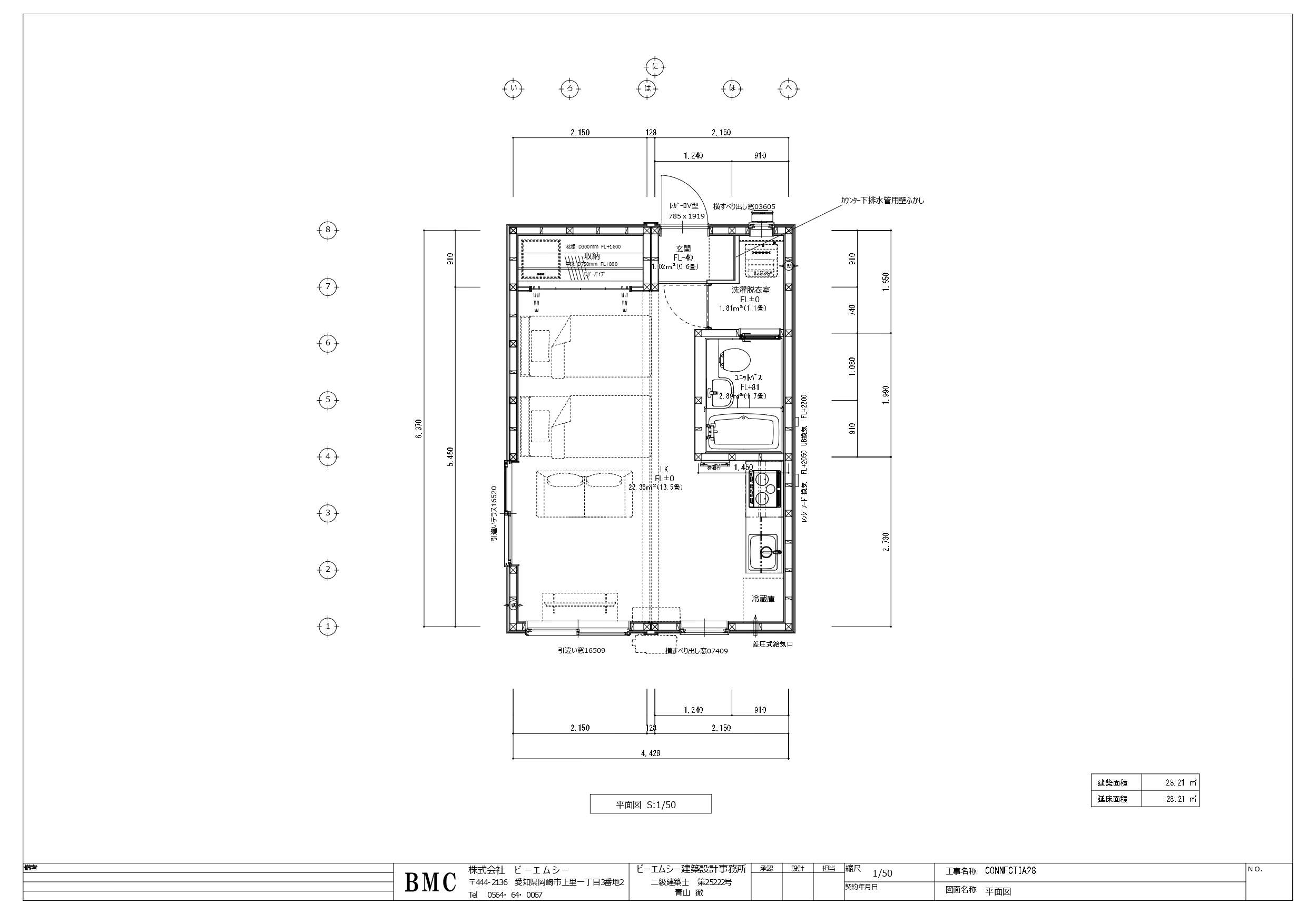
CONNECTIA28(展示商品・2ユニット)の間取り

展示場にあるのは2ユニットのCONNECTIA28。
お一人ならゆったり、お二人ならピッタリサイズです。

仕様

お風呂やトイレをはじめ、生活に必要なものは完備。
「ユニットハウスって、普通の家なんだ!」と実感いただけます。

構造 木造軸組み工法
耐震等級 2
耐風等級 2
断熱等性能等級 6
寸法 全幅4428㎜×全長6300㎜
延べ面積 28.21㎡
屋根、外壁 ガルバリウム鋼板
サッシ 高性能樹脂窓
キッチン IH付き/収納付き
ユニットバス 1216サイズ 3点セット
フローリング張り
壁/天井 突き板張り
洗面 1216サイズ 3点セット
トイレ 1216サイズ 3点セット

ACCESS 
※2026年3月28日オープン※

「思っていたより広い!」
「こんなに静かで快適なんだ!」
「ミニマルだけど、暮らしやすそう!」

そんな驚きと発見を、ぜひ展示場でご体験ください。

  • 〒444-0009
    愛知県岡崎市小呂町6丁目5

  • 0120-368-904

RESERVE THE SHOWROOM展示場見学ご予約

ご来場されるお客様にお伝えしたいこと
「ご説明」はしますが「営業」はしません。
なぜなら、展示場の見学は私たちが営業・セールスをする場ではなく
お客様に私たちの商品をじっくり見ていただく場だからです。
【必ずお読みください】
ご予約は当社からの折り返しのご連絡をもって確定となります。
フォームを送信した時点ではご予約は確定していませんのでお気を付けください。

確認のためもう一度メールアドレスを入力してください。

日付
時間
日付
時間
郵便番号

本入力フォームおよびメールでご連絡頂きましたお客様の個人情報につきましては、厳重に管理を行っております。 法令などに基づき正規の手続きによって司法捜査機関による開示要求が行われた場合を除き、第三者に開示もしくは提供することはございません。